
CCM
Balcon sur le Grand Veymont
Mission complète
Programme :
Rénovation extension d’un chalet.
Maîtrise d’ouvrage :
Privé
Localisation :
Gresse en Vercors (38)
Surface :
79 m2 SDP
Budget travaux :
195 000€ HT
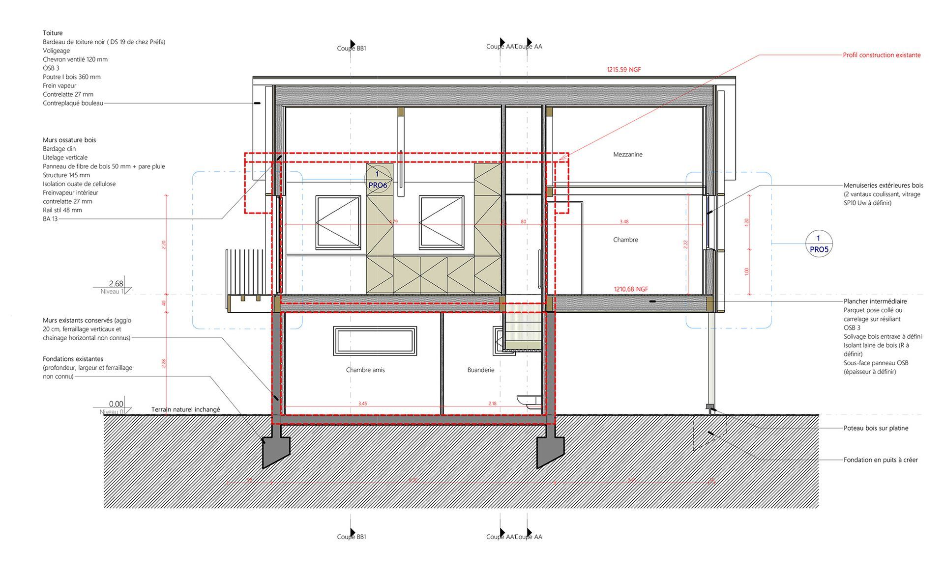
Situé sur les hauteurs du hameau du Chomeil à Gresse en Vercors, le chalet existant profite d’un emplacement privilégié, face au Grand Veymont. L’enjeu du projet était de transformer un habitat « léger » en une résidence principale tout en conservant l’orientation du bâti et la répartition des pièces.
La maçonnerie comme l’étage en madrier n’offraient malheureusement pas de bases solides pour envisager de s’appuyer sur la structure existante. Il a alors été décidé de créer de nouvelles fondations et de remplacer à l’identique le RDC pour venir ensuite élargir l’étage dans la limite autorisée par le PLU.
L’aspect contemporain de ce chalet transparait par un bardage rythmé en clin, un garde-corps en serrurerie ainsi que de fines dépassées de toitures. Autant de détails qui affirment la transformation récente de ce petit chalet de montagne.




Plans R+1 et Rez de jardin

Coupe longitudinale

Coupes de détail
