CDLM
Cabinet dentaire Miribel
Programme :
Rénovation et surélévation d’un cabinet dentaire
Maîtrise d’ouvrage :
SCI ASTREA
Localisation :
20 rue J Carre 01700 Miribel
Surface :
520 m2 SDP
Budget travaux :
1.7 M
Avancement :
Pro/DCE
Implanté dans le centre bourg de Miribel, ce cabinet dentaire construit dans les années 1970 par l’architecte Vahe Bernard Muradian bien que fonctionnel est aujourd’hui vétuste et nécessite une rénovation importante. Les travaux envisagés consistent à surélever le bâtiment existant afin de pouvoir étoffer l’offre de services dentaires et rendre accessible l’ensemble des salles de soins tout en rénovant énergétiquement l’ensemble.
D’un point de vue architectural, le projet proposé s’inscrit dans le prolongement de la construction existante qui date de l’année 1974. Le principe es de conserver la trame initiale et de construire au droit des murs bétons afin de préserver autant que possible le jardin existant. Afin de ne pas surcharger la structure existante et d’optimiser les temps de chantier il est envisagé de réaliser la surélévation en ossature bois. L’ensemble des murs construits seront revêtus d’un bardage en panneau Eternit, les parties en renfoncement qui reçoivent les menuiseries extérieures recevront un bardage lisse en alucobond anodisé. Les voiles béton du RDC seront quant à eux doublés en isolation thermique par l’extérieur et recouvert d’un enduit d’une teinte blanc cassé.
Le parvis accessible depuis la rue Joseph Carré permettra d’accueillir du stationnement pour les personnes à mobilité réduite. Les places seront réalisées en matériaux drainant type Evergreen PMR. Des espaces pleine terre seront aménagés en limite Nord et à proximité du local 2 roues afin de végétaliser le parvis.


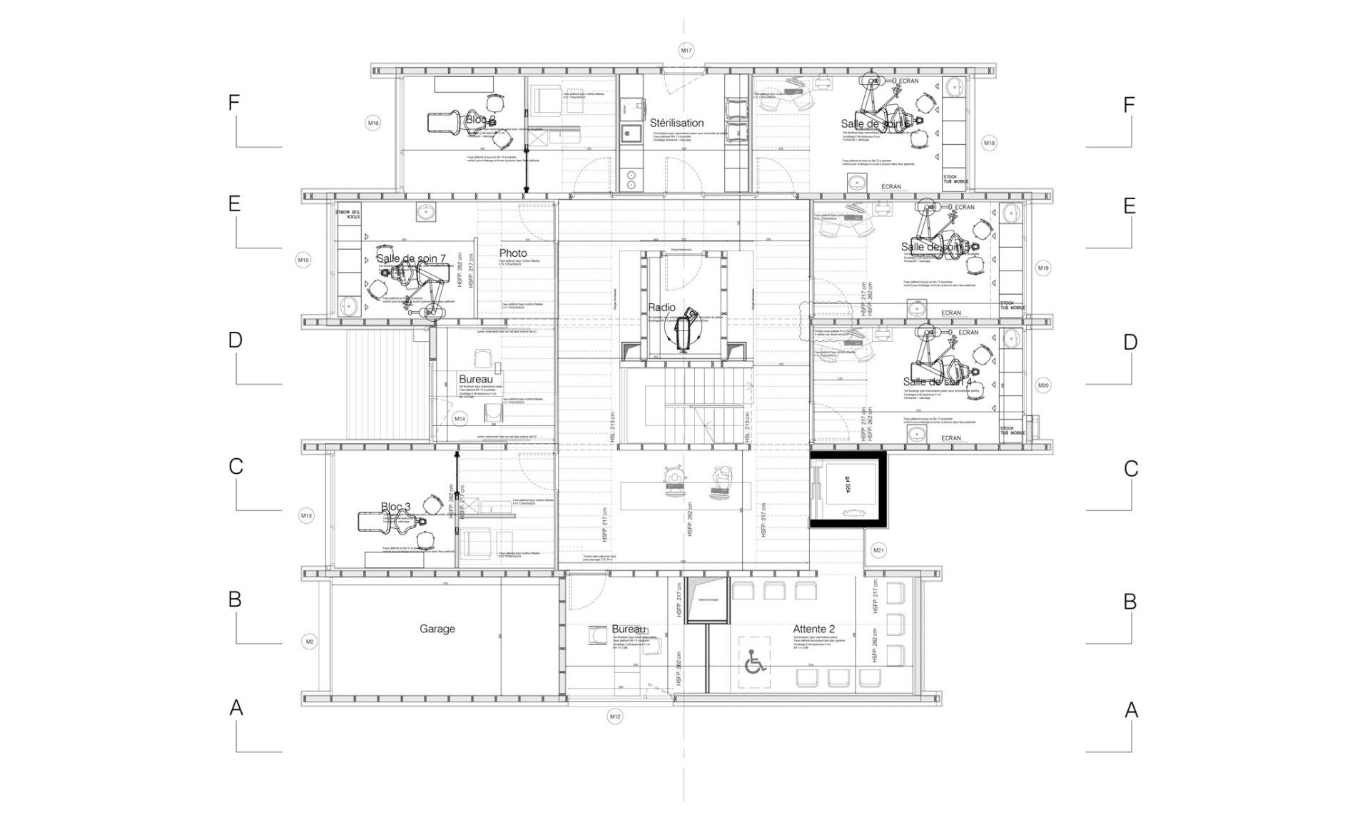
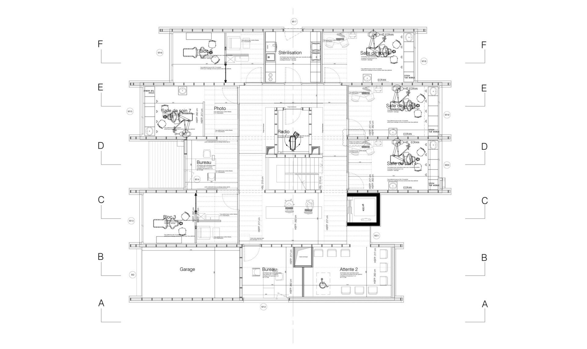
Plan RDC

Plan R+1

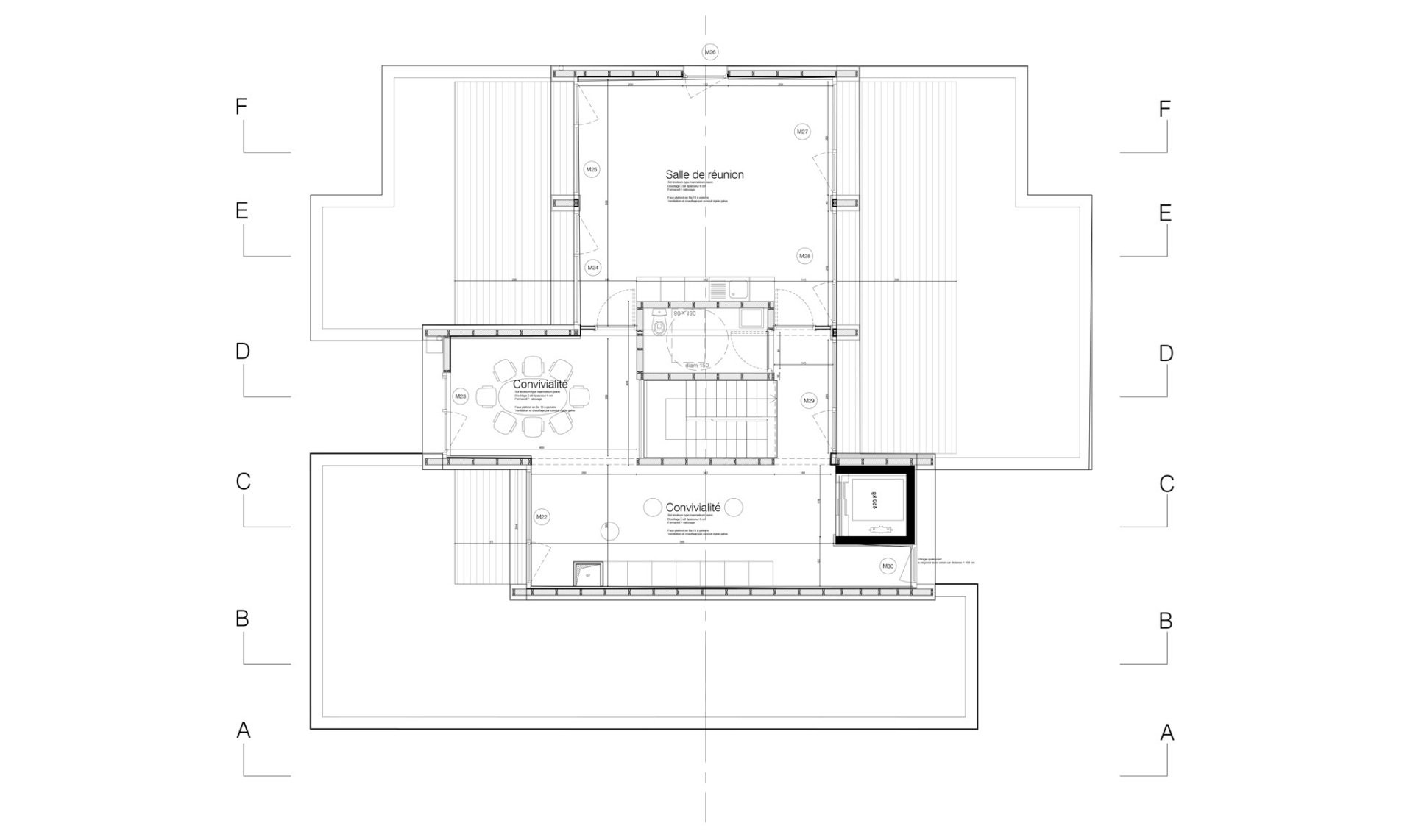
Plan R+2

Coupe transversale
